
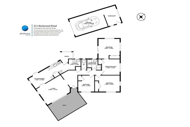
211 Bankwood Road, Chartwell, Hamilton, 3210 is a Residential property built in 1964 with 3 bedrooms, 1 bathroom and 0 parking spaces. The property is estimated to be valued in the range of $700,000 to $750,000.
The property last sold on 18 March 2025 for an unknown price. It was sold by Eves Realty Limited, and took 15 days to sell. On 1 September 2021, 211 Bankwood Road, Chartwell, Hamilton, 3210 had a Rating Valuation with a Capital Value of $820,000, Land Value of $510,000 and Improvement Value of $310,000.
| Date | Type | Price | Agent/Agency |
|---|---|---|---|
| 18 Mar 2025 | SOLD | $0 | |
| 3 Mar 2025 | ASKING PRICE | Price Not Disclosed | Aman Bali of Eves Realty Limited |
| 28 Nov 2024 | SOLD | $655,500 | |
| 5 Nov 2024 | ASKING PRICE | Price Not Disclosed | Lisa Sigley of Monarch Real Estate Ltd Hamilton, (Licensed: Reaa 2008) |
| 8 Apr 1994 | SOLD | $152,000 |
Lot 56 Deposited Plan South Auckland 7649
There are no similar properties in the area that are listed for sale or recently sold.