
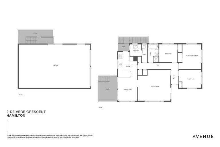
2 De Vere Crescent, Chartwell, Hamilton, 3210 is a Residential property built in 1968 with 3 bedrooms, 1 bathroom and 2 parking spaces. The property is estimated to be valued in the range of $900,000 to $1,000,000.
The property last sold on 26 May 2025 for an unknown price. It was sold by Bayleys Rototuna, and took 82 days to sell. On 1 September 2021, 2 De Vere Crescent, Chartwell, Hamilton, 3210 had a Rating Valuation with a Capital Value of $985,000, Land Value of $830,000 and Improvement Value of $155,000.
| Date | Type | Price | Agent/Agency |
|---|---|---|---|
| 26 May 2025 | $0 | Pending Settlement Advice | |
| 6 Mar 2025 | ASKING PRICE | $839,000 | Kimberly Savage Eves of Bayleys Rototuna |
| 12 Jun 2021 | Rented | $520 | Kylie Parker of Eves Realty Hamilton, (Licensed: Reaa 2008) |
| 7 May 2012 | SOLD | $364,000 | John Dunn of Harcourts Monarch Chartwell |
| 28 Apr 2012 | DEADLINE PRIVATE TREATY | $375,000 | John Dunn of Harcourts Monarch Chartwell |
| 12 Jul 2009 | SOLD | $340,000 | |
| 20 Apr 2006 | SOLD | $343,000 | Bradley Conder of Lodge Real Estate |
| 3 Apr 2006 | SOLD | $343,000 | Bradley Conder of Lodge Real Estate |
| 25 Feb 2006 | DEADLINE PRIVATE TREATY | $239,000 | Bradley Conder of Lodge Real Estate |
| 25 Feb 2006 | DEADLINE PRIVATE TREATY | $239,000 | Bradley Conder of Lodge Real Estate |
| 28 Nov 2001 | SOLD | $180,000 | |
| 11 Oct 1993 | SOLD | $131,000 |
Lot 177 Deposited Plan South Auckland 11800
There are no similar properties in the area that are listed for sale or recently sold.