
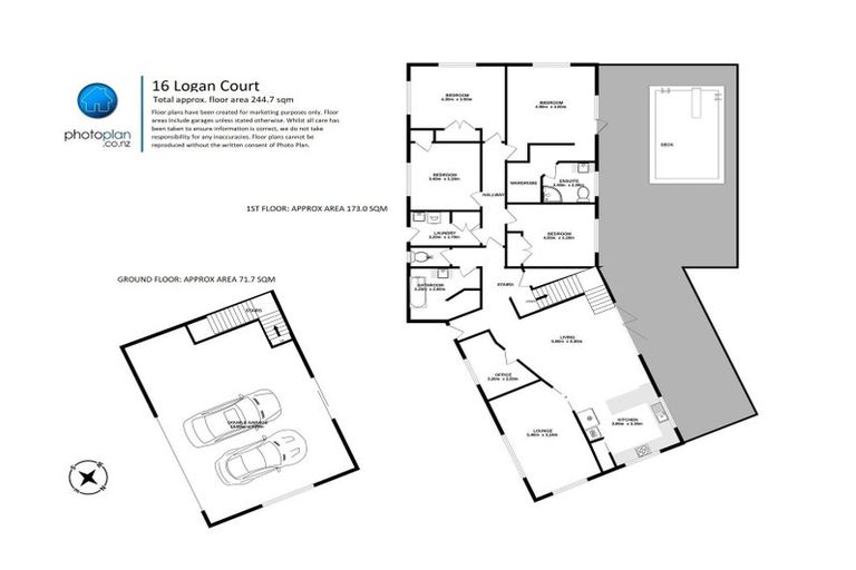
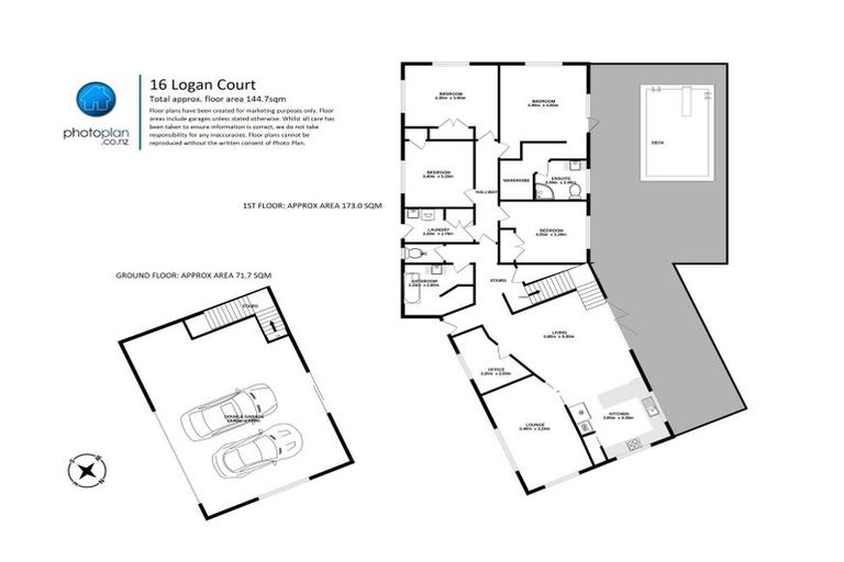
16 Logan Court, Chartwell, Hamilton, 3210 is a Residential property built in 2001 with 4 bedrooms, 2 bathrooms and 0 parking spaces. The property is estimated to be valued in the range of $1,100,000 to $1,200,000.
The property last sold on 3 September 2025 for an unknown price. On 1 September 2021, 16 Logan Court, Chartwell, Hamilton, 3210 had a Rating Valuation with a Capital Value of $1,275,000, Land Value of $770,000 and Improvement Value of $505,000.
| Date | Type | Price | Agent/Agency |
|---|---|---|---|
| 3 Sep 2025 | $0 | Pending Settlement Advice | |
| 30 May 2018 | SOLD | $830,000 | Terry Ryan of Lugtons Real Estate - Hamilton, Licensed Agent (Reaa 2008) |
| 30 May 2018 | SOLD | $830,000 | Terry Ryan of Lugtons Real Estate - Hamilton, Licensed Agent (Reaa 2008) |
| 10 May 2018 | BY NEGOTIATION | Price Not Disclosed | Terry Ryan of Lugtons Real Estate - Hamilton, Licensed Agent (Reaa 2008) |
| 10 May 2018 | BY NEGOTIATION | Price Not Disclosed | Terry Ryan of Lugtons Real Estate - Hamilton, Licensed Agent (Reaa 2008) |
| 30 Apr 2003 | SOLD | $89,000 |
Lot 15 Deposited Plan South Auckland 91028
There are no similar properties in the area that are listed for sale or recently sold.