
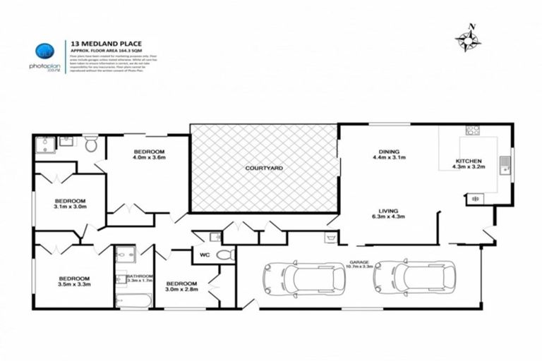
13 Medland Place, Chartwell, Hamilton, 3210 is a Residential property built in 2017 with 4 bedrooms, 2 bathrooms and 0 parking spaces. The property is estimated to be valued in the range of $900,000 to $1,000,000.
The property last sold on 26 July 2019 for $705,000. It was sold by Monarch Real Estate Ltd Hamilton, (Licensed: Reaa 2008). On 1 September 2021, 13 Medland Place, Chartwell, Hamilton, 3210 had a Rating Valuation with a Capital Value of $990,000, Land Value of $420,000 and Improvement Value of $570,000.
| Date | Type | Price | Agent/Agency |
|---|---|---|---|
| 26 Jul 2019 | SOLD | $705,000 | |
| 30 May 2019 | ASKING PRICE | $739,000 | Craig Annandale of Monarch Real Estate Ltd Harcourts, Hamilton Licensed: Reaa 2008 |
Lot 39 Deposited Plan 511622
There are no similar properties in the area that are listed for sale or recently sold.