
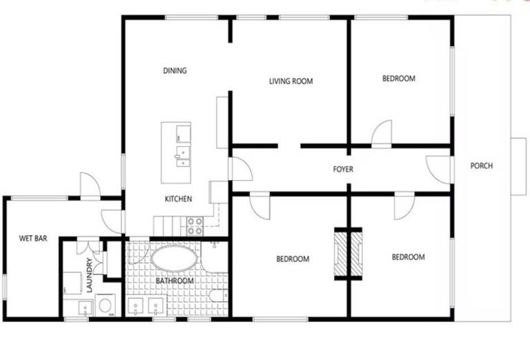
88 Celia Street, Stratford, 4332 is a Residential property built in 1912 with 3 bedrooms, 1 bathroom and 2 parking spaces. The property is estimated to be valued in the range of $400,000 to $450,000.
The property last sold on 28 March 2022 for $487,000. It was sold by Property Brokers New Plymouth. On 1 August 2023, 88 Celia Street, Stratford, 4332 had a Rating Valuation with a Capital Value of $390,000, Land Value of $200,000 and Improvement Value of $190,000.
| Date | Type | Price | Agent/Agency |
|---|---|---|---|
| 6 Feb 2025 | Rented | $580 | Janine Ridings of Property Brokers Ltd (Horowhenua / Wanganui) |
| 8 Jun 2024 | Rented | $580 | Janine Ridings of Property Brokers, (Licensed: Reaa 2008) |
| 30 Mar 2023 | Rented | $580 | Janine Ridings of Property Brokers, (Licensed: Reaa 2008) |
| 30 Jan 2023 | ENQUIRIES OVER | $465,000 | Ash Rowland of Tall Poppy Stratford & South Taranaki - Bulsara Ltd, (Licensed: Reaa 2008) |
| 28 Mar 2022 | SOLD | $487,000 | Jamie Bramfitt of Property Brokers New Plymouth |
| 28 Mar 2022 | SOLD | $487,000 | Jamie Bramfitt of Property Brokers New Plymouth |
| 25 Jan 2022 | ENQUIRIES OVER | $489,000 | Jamie Bramfitt of Property Brokers New Plymouth, (Licensed: Reaa 2008) |
| 25 Jan 2022 | ENQUIRIES OVER | $489,000 | Jamie Bramfitt of Property Brokers New Plymouth, (Licensed: Reaa 2008) |
| 20 Nov 2020 | SOLD | $340,000 | |
| 11 Nov 2020 | ENQUIRIES OVER | $315,000 | |
| 12 Jul 2013 | SOLD | $150,000 | Brian Jeffares of McDonald Real Estate Ltd |
| 2 May 2012 | ASKING PRICE | $150,000 | Brian Jeffares of McDonald Real Estate Ltd |
| 29 Dec 2011 | ASKING PRICE | $185,000 | |
| 5 Dec 2006 | SOLD | $150,000 |
Lot 2 Deposited Plan 7679
There are no similar properties in the area that are listed for sale or recently sold.