
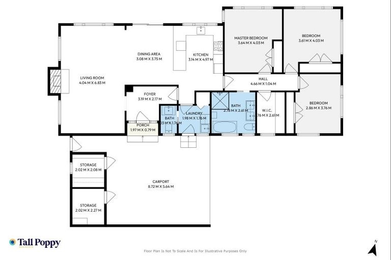
135 Brecon Road, Stratford, 4332 is a Residential property built in 1969 with 3 bedrooms, 1 bathroom and 2 parking spaces. The property is estimated to be valued in the range of $500,000 to $550,000.
The property last sold on 14 May 2025 for an unknown price. It was sold by Tall Poppy Stratford & South Taranaki - Bulsara Ltd. On 1 August 2023, 135 Brecon Road, Stratford, 4332 had a Rating Valuation with a Capital Value of $550,000, Land Value of $205,000 and Improvement Value of $345,000.
| Date | Type | Price | Agent/Agency |
|---|---|---|---|
| 14 May 2025 | $0 | Pending Settlement Advice | |
| 1 May 2025 | ASKING PRICE | $635,000 | Shannan Sorensen of Tall Poppy |
| 30 May 2024 | SOLD | $605,000 | |
| 18 Jan 2020 | SOLD | $440,000 | |
| 18 May 2017 | SOLD | $355,000 |
Lot 1 Deposited Plan 527746
There are no similar properties in the area that are listed for sale or recently sold.