
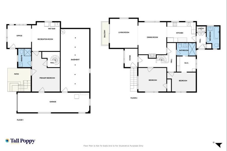
26 Mclean Street, Strandon, New Plymouth, 4312 is a Residential property built in 1936 with 3 bedrooms, 3 bathrooms and 1 parking space. The property is estimated to be valued in the range of $1,300,000 to $1,400,000.
The property last sold on 29 February 2024 for $1,265,000. It was sold by First National Collective New Plymouth, (Licensed: Reaa 2008), and took 7 days to sell. On 1 August 2022, 26 Mclean Street, Strandon, New Plymouth, 4312 had a Rating Valuation with a Capital Value of $1,360,000, Land Value of $740,000 and Improvement Value of $620,000.
| Date | Type | Price | Agent/Agency |
|---|---|---|---|
| 29 Feb 2024 | SOLD | $1,265,000 | |
| 16 Nov 2023 | ENQUIRIES OVER | $1,295,000 | Jamie Gemmell of First National Collective New Plymouth, (Licensed: Reaa 2008) |
| 22 Feb 2023 | ENQUIRIES OVER | $1,325,000 | Jamie Gemmell of First National Collective New Plymouth, (Licensed: Reaa 2008) |
| 28 Jan 2022 | SOLD | $1,400,000 | Team Green of Harcourts Bell Block |
| 25 Jan 2022 | BY NEGOTIATION | Price Not Disclosed | Jay Green of Harcourts Bell Block, (Licensed: Reaa 2008) |
| 19 Feb 2015 | SOLD | $610,000 | |
| 5 Aug 2014 | ASKING PRICE | $620,000 | Jack Kurta of Taranaki Property Specialists Ltd |
| 15 Sep 1997 | SOLD | $122,500 | |
| 28 Feb 1995 | SOLD | $120,000 |
Lot 2 Deposited Plan 14050
There are no similar properties in the area that are listed for sale or recently sold.