
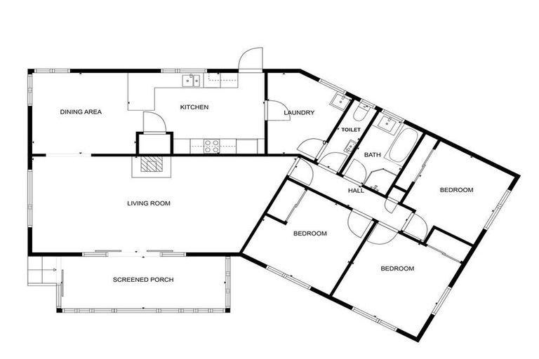
72 Bain Street, Kingswell, Invercargill, 9812 is a Residential property built in 1980 with 3 bedrooms, 1 bathroom and 2 parking spaces. The property is estimated to be valued in the range of $700,000 to $750,000.
The property last sold on 7 August 2025 for an unknown price. On 1 July 2023, 72 Bain Street, Kingswell, Invercargill, 9812 had a Rating Valuation with a Capital Value of $590,000, Land Value of $180,000 and Improvement Value of $410,000.
| Date | Type | Price | Agent/Agency |
|---|---|---|---|
| 7 Aug 2025 | $645,000 | Pending Settlement Advice | |
| 18 May 2023 | SOLD | $620,000 | |
| 9 Mar 2023 | ASKING PRICE | $649,000 | Vicky Young of Southern NZ Real Estate Brokers Ltd, (Licensed: Reaa 2008) |
| 30 Nov 2014 | SOLD | $297,000 | Carl Wilson Areinz of Hoamz Southland Ltd |
| 11 Sep 2014 | ASKING PRICE | $339,000 | Carl Wilson Areinz of Hoamz Southland Ltd |
| 11 Jun 2005 | SOLD | $190,000 | |
| 1 Dec 2002 | SOLD | $142,500 | |
| 1 Feb 1996 | SOLD | $105,500 | |
| 14 Mar 1993 | SOLD | $110,000 | |
| 23 Jul 1987 | SOLD | $68,000 |
Lot 2 Deposited Plan 8852
There are no similar properties in the area that are listed for sale or recently sold.