
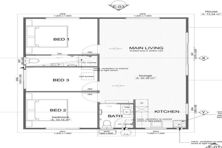
37 Stromness Street, Palmerston, 9430 is a Residential property built in 2025 with 3 bedrooms, 2 bathrooms and 0 parking spaces. The property is estimated to be valued in the range of $375,000 to $400,000.
The property last sold on 1 January 1930 for an unknown price. On 1 August 2023, 37 Stromness Street, Palmerston, 9430 had a Rating Valuation with a Capital Value of $335,000, Land Value of $75,000 and Improvement Value of $260,000.
| Date | Type | Price | Agent/Agency |
|---|---|---|---|
| 6 May 2025 | BY NEGOTIATION | Price Not Disclosed | Leona Stretch of New Heights Real Estate 2022, (Licensed: Reaa 2008) |
| 1 Jan 1930 | SOLD | $0 |
Section 21 Block XVI Town of Palmerston
There are no similar properties in the area that are listed for sale or recently sold.