1 of 11Feb 24
Loading...

54 Forest Heights Wanaka, 9305


54 Forest Heights , Wanaka, 9305
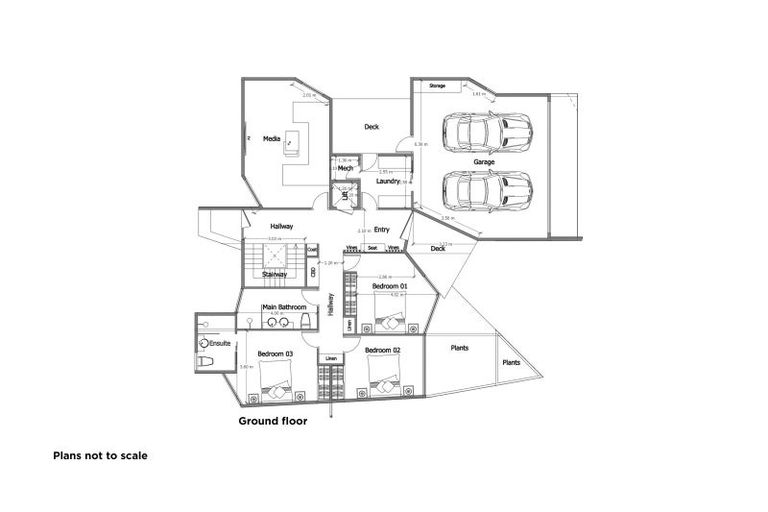
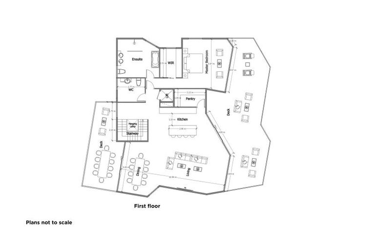
bed4
bathroom4
car-
land800 m2
floor-
Property Type
Residential
Year Built
-
Last Sale information not available

Estimated Value Range  


An estimate of value is not currently available for this property. There could be insufficient property information or recent sales data. The property could be out of scope (e.g. non-residential, highly unique, rural) or the estimate cannot be determined with high enough confidence.

About 54 Forest Heights, Wanaka, 9305

54 Forest Heights, Wanaka, 9305 is a Residential property with 4 bedrooms, 4 bathrooms and 0 parking spaces. Due to insufficient data, the value of the property cannot be estimated.

It is unknown when the property was last sold or how much it was sold for. On 1 September 2024, 54 Forest Heights, Wanaka, 9305 had a Rating Valuation with a Capital Value of $1,775,000 and Land Value of $1,775,000.

Property History

DateTypePriceAgent/Agency
10 Feb 2024BY NEGOTIATIONPrice Not DisclosedJamie Askham of Lake Wanaka Realty Limited, Bayleys Wanaka, (Licensed: Reaa 2008)
Present Day
10 Feb
2024
By Negotiation — Price Not Disclosed
Listed by Jamie Askham of Lake Wanaka Realty Limited, Bayleys Wanaka, (Licensed: Reaa 2008)
Unknown
Property Built

Commute Calculator

-
-
-
-

Rating Valuation

Capital Value
$1,775,000
Land Value
$1,775,000
Improvement Value
-
Legal Description(s)

Lot 2 Deposited Plan 571442

Valuation Date
01-09-2024
Valuation Reference
29051/14830

Additional Information

Roof Construction
-
Zone
Residential Zone A, 9A
Units of Use
1
Wall Construction
-
Maori Land
No
Territorial Authority
Queenstown-lakes District
Land Use
-

Suburb Insights

Comparable Properties

There are no similar properties in the area that are listed for sale or recently sold.