
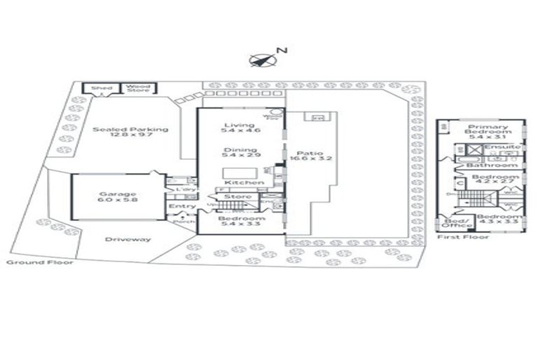
21 Marjon Drive, Wanaka, 9305 is a Residential property built in 2022 with 4 bedrooms, 3 bathrooms and 2 parking spaces. The property is estimated to be valued in the range of $2,000,000 to $2,200,000.
It is unknown when the property was last sold or how much it was sold for. On 1 September 2024, 21 Marjon Drive, Wanaka, 9305 had a Rating Valuation with a Capital Value of $2,070,000, Land Value of $750,000 and Improvement Value of $1,320,000.
| Date | Type | Price | Agent/Agency |
|---|---|---|---|
| 16 Sep 2024 | BY NEGOTIATION | Price Not Disclosed | Sharon Donnelly of Lake Wanaka Realty Limited, Bayleys Wanaka, (Licensed: Reaa 2008) |
| 3 Feb 2024 | BY NEGOTIATION | Price Not Disclosed | Kay Lucas Areinz of Whitefox Real Estate - Queenstown, (Licensed: Reaa 2008) |
| 6 Sep 2023 | ASKING PRICE | $1,999,000 | Kay Lucas Areinz of Whitefox Real Estate - Queenstown, (Licensed: Reaa 2008) |
Lot 84 Deposited Plan 546034
There are no similar properties in the area that are listed for sale or recently sold.