
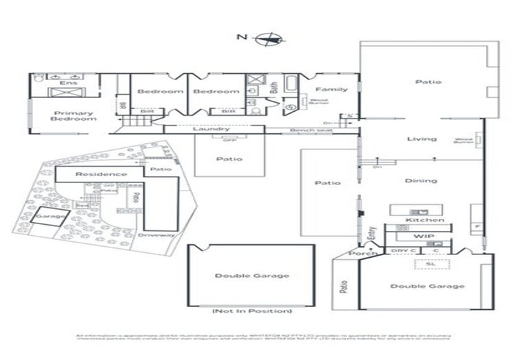
8 Big Valley Drive, Jacks Point, Queenstown, 9371 is a Residential property built in 2018 with 3 bedrooms, 2 bathrooms and 4 parking spaces. The property is estimated to be valued in the range of $3,250,000 to $3,500,000.
The property last sold on 15 September 2025 for $2,962,000. It was sold by Whitefox Real Estate - Queenstown, (Licensed: Reaa 2008), and took 19 days to sell. On 1 September 2024, 8 Big Valley Drive, Jacks Point, Queenstown, 9371 had a Rating Valuation with a Capital Value of $2,660,000, Land Value of $1,070,000 and Improvement Value of $1,590,000.
| Date | Type | Price | Agent/Agency |
|---|---|---|---|
| 15 Sep 2025 | SOLD | $2,962,000 | |
| 28 Aug 2025 | BY NEGOTIATION | Price Not Disclosed | Kate Fairmaid of Whitefox Real Estate - Queenstown, (Licensed: Reaa 2008) |
| 14 Apr 2024 | Rented | $1,795 | |
| 12 Feb 2024 | BY NEGOTIATION | Price Not Disclosed | Jessica Coburn of Bayleys Queenstown - Queenstown And Southern NZ Realty Limited, (Licensed: Reaa 2008) |
Lot 6006 Deposited Plan 418420
There are no similar properties in the area that are listed for sale or recently sold.