
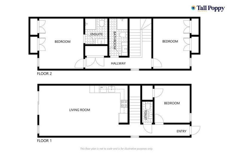
7 Mcgibbon Lane, Jacks Point, 9371 is a Residential property built in 2021 with 3 bedrooms, 2 bathrooms and 1 parking space. The property is estimated to be valued in the range of $1,200,000 to $1,300,000.
It is unknown when the property was last sold or how much it was sold for. On 1 September 2024, 7 Mcgibbon Lane, Jacks Point, 9371 had a Rating Valuation with a Capital Value of $1,275,000, Land Value of $460,000 and Improvement Value of $815,000.
| Date | Type | Price | Agent/Agency |
|---|---|---|---|
| 6 Apr 2021 | SOLD | $896,700 |
Lot 11 Deposited Plan 558295
There are no similar properties in the area that are listed for sale or recently sold.