
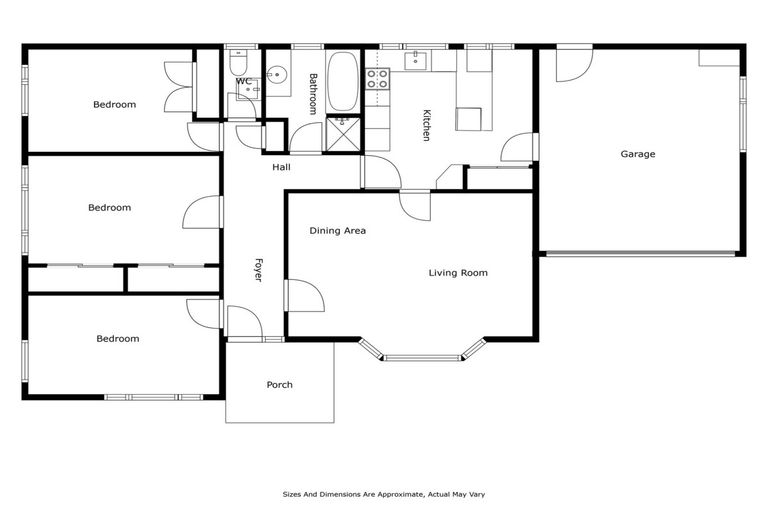
231 Bay View Road, Saint Clair, Dunedin, 9012 is a Residential property built in 1984 with 3 bedrooms, 1 bathroom and 1 parking space. The property is estimated to be valued in the range of $750,000 to $800,000.
The property last sold on 3 October 2025 for $700,000. It was sold by LJ Hooker Dunedin, and took 72 days to sell. On 1 June 2025, 231 Bay View Road, Saint Clair, Dunedin, 9012 had a Rating Valuation with a Capital Value of $760,000, Land Value of $325,000 and Improvement Value of $435,000.
| Date | Type | Price | Agent/Agency |
|---|---|---|---|
| 3 Oct 2025 | SOLD | $700,000 | |
| 24 Jul 2025 | ASKING PRICE | Price Not Disclosed | Trista Townsend of LJ Hooker Dunedin |
Lot 3 Deposited Plan 18832
There are no similar properties in the area that are listed for sale or recently sold.