
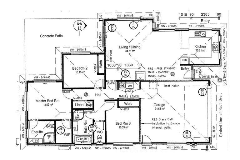
7b High Street, Mosgiel, 9024 is a Residential property built in 2017 with 3 bedrooms, 2 bathrooms and 2 parking spaces. The property is estimated to be valued in the range of $800,000 to $900,000.
The property last sold on 25 August 2017 for $518,000. It was sold by LJ Hooker Mosgiel. On 1 July 2022, 7b High Street, Mosgiel, 9024 had a Rating Valuation with a Capital Value of $900,000, Land Value of $385,000 and Improvement Value of $515,000.
| Date | Type | Price | Agent/Agency |
|---|---|---|---|
| 25 Aug 2017 | SOLD | $518,000 | |
| 31 May 2017 | AUCTION | Price Not Disclosed | |
| 8 Apr 2016 | SOLD | $130,434 |
Lot 10 Deposited Plan 489641
There are no similar properties in the area that are listed for sale or recently sold.