
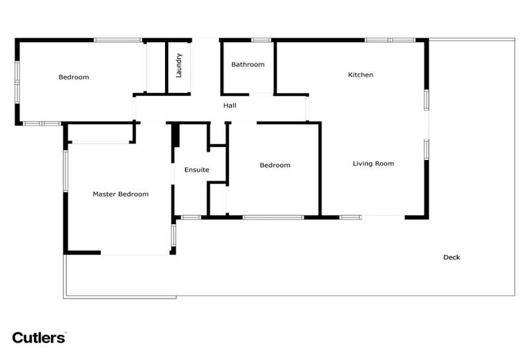
37 Green Street, Mosgiel, 9024 is a Residential property built in 1956 with 3 bedrooms, 2 bathrooms and 2 parking spaces. The property is estimated to be valued in the range of $600,000 to $650,000.
The property last sold on 1 April 2025 for an unknown price. It was sold by Cutlers Ltd. On 1 July 2022, 37 Green Street, Mosgiel, 9024 had a Rating Valuation with a Capital Value of $660,000, Land Value of $385,000 and Improvement Value of $275,000.
| Date | Type | Price | Agent/Agency |
|---|---|---|---|
| 1 Apr 2025 | SOLD | $0 | |
| 20 Mar 2025 | ASKING PRICE | Price Not Disclosed | Nick Beard of Cutlers |
| 10 Apr 2024 | Rented | $650 | Book A Viewing @ Click of Click Property Management Ltd |
| 21 Feb 2022 | Rented | $620 | Book A Viewing @ Click of Click Property Management Ltd |
| 22 Jul 2020 | SOLD | $425,316 | |
| 2 Jul 2020 | PRICE ON APPLICATION | Price Not Disclosed | Bryan Pearce of Ray White Dunedin (Proven Realty Ltd) |
Lot 62 Deposited Plan 8287
There are no similar properties in the area that are listed for sale or recently sold.