
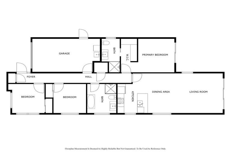
5 Dotterel Lane, Cromwell, 9310 is a Residential property built in 2023 with 3 bedrooms, 2 bathrooms and 1 parking space. The property is estimated to be valued in the range of $800,000 to $900,000.
The property last sold on 8 September 2024 for $880,000. It was sold by Property Brokers Cromwell, (Licensed: Reaa 2008), and took 13 days to sell. On 1 October 2022, 5 Dotterel Lane, Cromwell, 9310 had a Rating Valuation with a Capital Value of $720,000, Land Value of $285,000 and Improvement Value of $435,000.
| Date | Type | Price | Agent/Agency |
|---|---|---|---|
| 8 Sep 2024 | SOLD | $880,000 | |
| 27 Aug 2024 | ENQUIRIES OVER | $880,000 | Jeanine Ellis of Property Brokers Cromwell, (Licensed: Reaa 2008) |
| 23 May 2022 | SOLD | $285,000 |
Lot 289 Deposited Plan 574973
There are no similar properties in the area that are listed for sale or recently sold.