
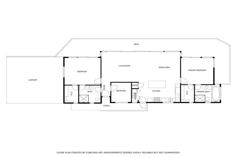
22 Access Heights, Kerikeri, 0230 is a Residential property built in 2006 with 3 bedrooms, 2 bathrooms and 1 parking space. The property is estimated to be valued in the range of $900,000 to $1,000,000.
The property last sold on 1 January 1930 for an unknown price. On 1 October 2022, 22 Access Heights, Kerikeri, 0230 had a Rating Valuation with a Capital Value of $1,020,000, Land Value of $430,000 and Improvement Value of $590,000.
| Date | Type | Price | Agent/Agency |
|---|---|---|---|
| 17 Apr 2025 | BY NEGOTIATION | Price Not Disclosed | David Baguley of Bayleys In The North – Mackys Real Estate Bay OF Islands, (Licensed: Reaa 2008) |
| 22 May 2013 | ASKING PRICE | $230,000 | Anne Jolly of Ray White Kerikeri (Hewson Real Estate Ltd) |
| 18 Nov 2012 | ASKING PRICE | $138,000 | Steven Ruiter of Real Property Kerikeri Ltd |
| 1 Jan 1930 | SOLD | $0 |
Lot 18 Deposited Plan 357360
There are no similar properties in the area that are listed for sale or recently sold.