
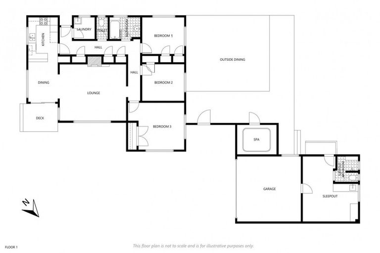
13 Marlborough Crescent, Richmond, 7020 is a Residential property built in 1972 with 4 bedrooms, 2 bathrooms and 2 parking spaces. The property is estimated to be valued in the range of $750,000 to $800,000.
The property last sold on 11 April 2024 for $720,000. It was sold by Chaneys Real Estate Limited, (Licensed: Reaa 2008), and took 57 days to sell. On 1 September 2023, 13 Marlborough Crescent, Richmond, 7020 had a Rating Valuation with a Capital Value of $720,000, Land Value of $360,000 and Improvement Value of $360,000.
| Date | Type | Price | Agent/Agency |
|---|---|---|---|
| 11 Apr 2024 | SOLD | $720,000 | |
| 15 Feb 2024 | ENQUIRIES OVER | $719,000 | Grant Chaney of Chaneys Real Estate Limited, (Licensed: Reaa 2008) |
| 13 Feb 2022 | ENQUIRIES OVER | $799,000 | Brent Palmer of Tall Poppy Nelson |
| 18 Feb 2020 | Rented | $530 | Jayne Watkins of Rentals 4 You Limited |
| 5 Nov 2014 | SOLD | $430,000 | Haywood Benson of Mike Pero Real Estate Nelson |
| 28 Oct 2014 | ENQUIRIES OVER | $429,000 | |
| 27 May 2010 | SOLD | $370,000 | Karen Horner of Harcourts |
| 12 Mar 2010 | ASKING PRICE | $375,000 | |
| 15 Dec 2006 | SOLD | $368,000 | |
| 14 Dec 2001 | SOLD | $178,000 | |
| 22 Aug 2000 | SOLD | $160,000 |
Lot 25 Deposited Plan 7551
There are no similar properties in the area that are listed for sale or recently sold.