
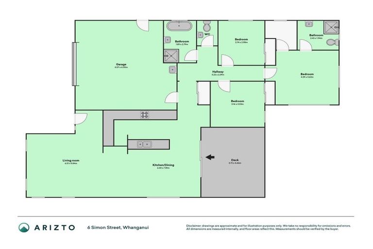
6 Simon Street, Tawhero, Whanganui, 4501 is a Residential property built in 2022 with 3 bedrooms, 2 bathrooms and 2 parking spaces. The property is estimated to be valued in the range of $800,000 to $900,000.
It is unknown when the property was last sold or how much it was sold for. On 1 October 2022, 6 Simon Street, Tawhero, Whanganui, 4501 had a Rating Valuation with a Capital Value of $780,000, Land Value of $245,000 and Improvement Value of $535,000.
| Date | Type | Price | Agent/Agency |
|---|---|---|---|
| 13 Aug 2025 | ENQUIRIES OVER | $869,000 | The Bournes of Arizto Ltd, (Licensed: Reaa 2008) |
Lot 11 Deposited Plan 490298
There are no similar properties in the area that are listed for sale or recently sold.