
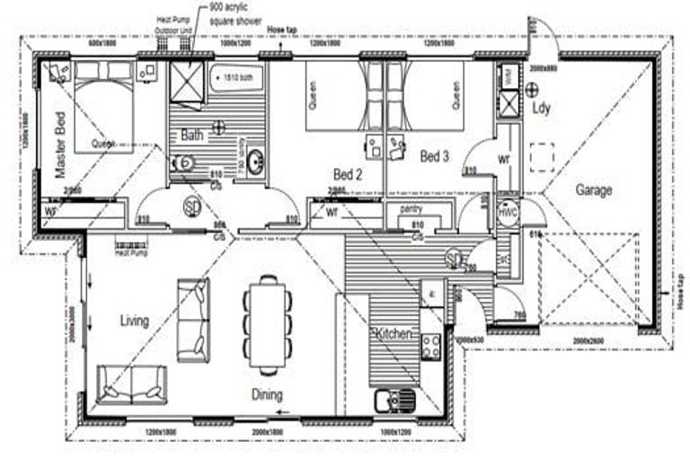
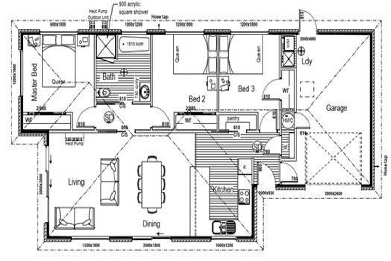
52a Puriri Street, Gonville, Whanganui, 4501 is a Residential property built in 2024 with 3 bedrooms, 1 bathroom and 1 parking space. The property is estimated to be valued in the range of $600,000 to $650,000.
It is unknown when the property was last sold or how much it was sold for. On 1 October 2022, 52a Puriri Street, Gonville, Whanganui, 4501 had a Rating Valuation with a Capital Value of $560,000, Land Value of $115,000 and Improvement Value of $445,000.
| Date | Type | Price | Agent/Agency |
|---|---|---|---|
| 20 Jun 2025 | Rented | $570 | Myrent.Co.Nz of Myrent.Co.NZ Ltd |
| 24 Mar 2024 | Rented | $570 | Myrent.Co.Nz of Myrent.Co.NZ Ltd |
Lot 2 Deposited Plan 588371
There are no similar properties in the area that are listed for sale or recently sold.