
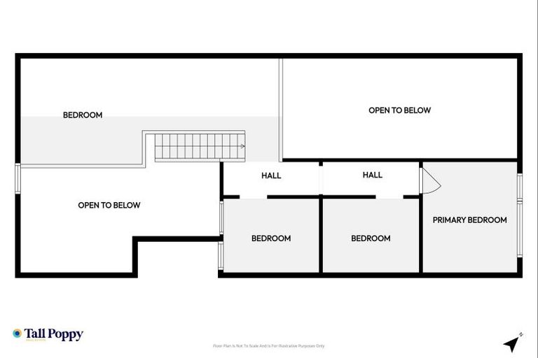
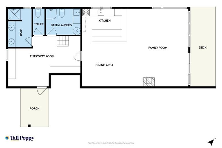
7 Conway Street, Ohakune, 4625 is a Residential property built in 1983 with 3 bedrooms, 1 bathroom and 1 parking space. The property is estimated to be valued in the range of $375,000 to $400,000.
The property last sold on 28 July 2017 for $212,000. It was sold by Bayleys Realty Ltd Ruapehu, and took 269 days to sell. On 1 July 2023, 7 Conway Street, Ohakune, 4625 had a Rating Valuation with a Capital Value of $355,000, Land Value of $125,000 and Improvement Value of $230,000.
| Date | Type | Price | Agent/Agency |
|---|---|---|---|
| 28 Jul 2017 | SOLD | $212,000 | Michaela Palacio of Bayleys Realty Ltd Ruapehu |
| 2 Nov 2016 | ASKING PRICE | $220,000 | Michaela Palacio of Bayleys Realty Ltd Ruapehu |
| 15 May 2009 | SOLD | $220,000 | |
| 30 Apr 2004 | SOLD | $125,000 | |
| 3 Mar 1997 | SOLD | $87,000 | |
| 13 Jul 1993 | SOLD | $77,000 |
Unit 1 and Accessory Unit 1A Deposited Plan 58040
There are no similar properties in the area that are listed for sale or recently sold.