
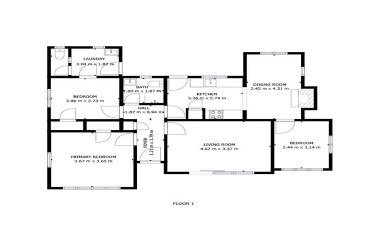
12 Rira Street, Marton, 4710 is a Residential property built in 1948 with 3 bedrooms, 1 bathroom and 1 parking space. The property is estimated to be valued in the range of $275,000 to $300,000.
The property last sold on 27 August 2021 for $351,000. It was sold by Re/Max Revolution, and took 7 days to sell. On 1 August 2023, 12 Rira Street, Marton, 4710 had a Rating Valuation with a Capital Value of $270,000, Land Value of $130,000 and Improvement Value of $140,000.
| Date | Type | Price | Agent/Agency |
|---|---|---|---|
| 24 Oct 2023 | Rented | $520 | Nicole Mills of Watson Real Estate Rentals, (Licensed: Reaa 2008) |
| 25 Nov 2022 | Rented | $490 | Abby Hawkes of Landlords Link Ltd |
| 28 Sep 2022 | ASKING PRICE | $457,000 | Linda Harris of Watson Real Estate Ltd |
| 27 Aug 2021 | SOLD | $351,000 | Carol Lewis of Re/Max Revolution |
| 9 Jun 2021 | ENQUIRIES OVER | $350,000 | Carol Lewis of Re/Max Revolution |
| 30 Jul 2006 | SOLD | $90,500 | Bob of Property Brokers |
| 22 Jun 2006 | DEADLINE PRIVATE TREATY | $115,000 | Bob of Property Brokers |
| 16 Aug 2003 | SOLD | $30,000 | |
| 24 Feb 1999 | SOLD | $25,000 |
Lot 1 Deposited Plan 46305
There are no similar properties in the area that are listed for sale or recently sold.