
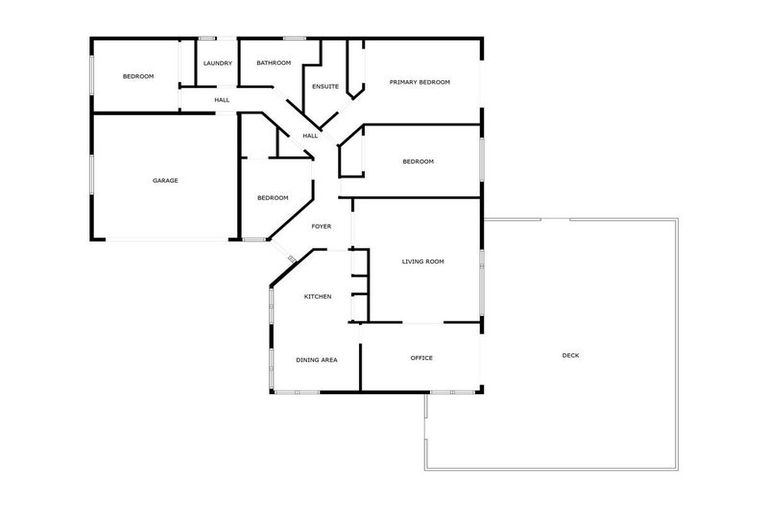
175a Ferguson Street, West End, Palmerston North, 4412 is a Residential property built in 1991 with 4 bedrooms, 2 bathrooms and 2 parking spaces. The property is estimated to be valued in the range of $650,000 to $700,000.
The property last sold on 11 July 2025 for an unknown price. On 1 September 2024, 175a Ferguson Street, West End, Palmerston North, 4412 had a Rating Valuation with a Capital Value of $630,000, Land Value of $320,000 and Improvement Value of $310,000.
| Date | Type | Price | Agent/Agency |
|---|---|---|---|
| 11 Jul 2025 | $0 | Pending Settlement Advice | |
| 3 Mar 2005 | SOLD | $276,000 | |
| 24 Aug 1994 | SOLD | $210,000 | |
| 7 Oct 1991 | SOLD | $170,000 | |
| 8 Feb 1991 | SOLD | $110,000 | |
| 26 Nov 1987 | SOLD | $72,000 |
Lot 2 Deposited Plan 68975
There are no similar properties in the area that are listed for sale or recently sold.