
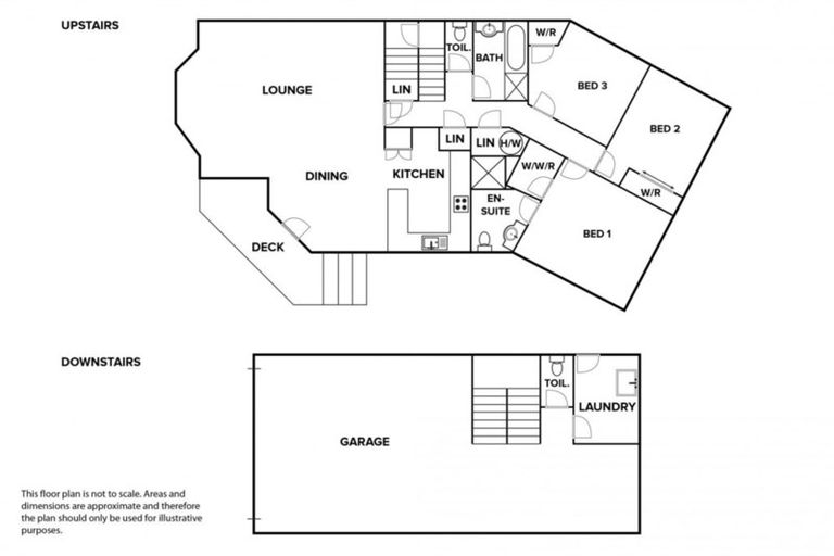
14 Glasgow Terrace, Feilding, 4702 is a Residential property built in 1994 with 3 bedrooms, 2 bathrooms and 1 parking space. The property is estimated to be valued in the range of $500,000 to $550,000.
The property last sold on 9 August 2019 for $396,000. It was sold by Watson Real Estate Ltd, and took 58 days to sell. On 1 July 2022, 14 Glasgow Terrace, Feilding, 4702 had a Rating Valuation with a Capital Value of $550,000, Land Value of $160,000 and Improvement Value of $390,000.
| Date | Type | Price | Agent/Agency |
|---|---|---|---|
| 18 Oct 2024 | Rented | $660 | Mandy Groombridge of Homely Property Management |
| 23 Apr 2024 | Rented | $660 | Mandy Groombridge of Homely Property Management |
| 9 Aug 2019 | SOLD | $396,000 | |
| 13 Jun 2019 | ENQUIRIES OVER | $395,000 | Mike Mancer of Watson Real Estate Ltd |
| 27 Oct 2017 | SOLD | $304,000 | Michael Ford of Bayleys Feilding |
| 14 Jul 2017 | ASKING PRICE | $309,000 | Michael Ford of Bayleys Feilding |
| 5 May 2015 | SOLD | $265,000 | Nicola Barnett of Nzr Limited |
| 21 Feb 2015 | ASKING PRICE | $269,000 | Nicola Barnett of Nzr Limited |
| 31 Dec 2008 | SOLD | $240,000 | |
| 10 Jul 2006 | SOLD | $230,000 | Michael Ford of First National Trevor D Ford |
| 16 Jun 2006 | DEADLINE PRIVATE TREATY | $200,000 | Gary of Property Brokers |
| 15 Sep 1997 | SOLD | $159,000 |
Lot 3 Deposited Plan 68607
There are no similar properties in the area that are listed for sale or recently sold.