
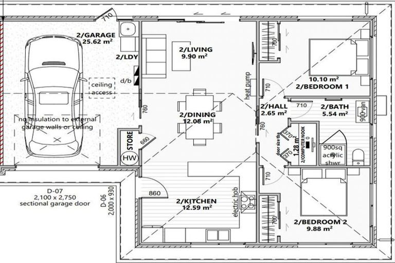
128b Weraroa Road, Levin, 5510 is a Residential property built in 2023 with 2 bedrooms, 1 bathroom and 1 parking space. The property is estimated to be valued in the range of $500,000 to $550,000.
It is unknown when the property was last sold or how much it was sold for. On 1 August 2022, 128b Weraroa Road, Levin, 5510 had a Rating Valuation with a Capital Value of $550,000, Land Value of $185,000 and Improvement Value of $365,000.
| Date | Type | Price | Agent/Agency |
|---|---|---|---|
| 16 May 2025 | Rented | $530 | Myrent.Co.Nz of Myrent.Co.NZ Ltd |
Lot 2 Deposited Plan 579879
There are no similar properties in the area that are listed for sale or recently sold.