
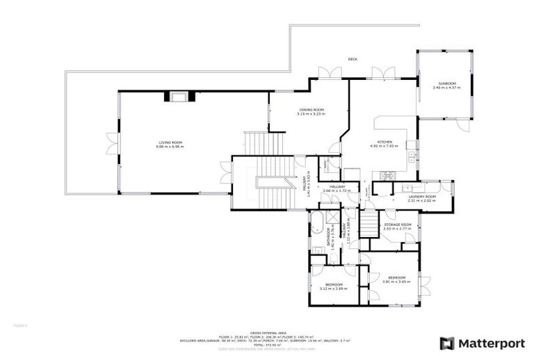
121 Clyde Road, Wairoa, 4108 is a Residential property built in 1989 with 5 bedrooms, 3 bathrooms and 2 parking spaces. The property is estimated to be valued in the range of $700,000 to $750,000.
The property last sold on 11 October 2023 for $730,000. It was sold by Property Brokers Wairoa, (Licensed: Reaa 2008), and took 50 days to sell. On 1 August 2024, 121 Clyde Road, Wairoa, 4108 had a Rating Valuation with a Capital Value of $750,000, Land Value of $195,000 and Improvement Value of $555,000.
| Date | Type | Price | Agent/Agency |
|---|---|---|---|
| 17 Dec 2024 | ENQUIRIES OVER | $940,000 | Kimberley Bell of Pgg Wrightson Real Estate Ltd |
| 11 Oct 2023 | SOLD | $730,000 | |
| 23 Aug 2023 | ENQUIRIES OVER | $825,000 | Vern Withey of Property Brokers Wairoa, (Licensed: Reaa 2008) |
| 10 May 2023 | ENQUIRIES OVER | $825,000 | Vern Withey of Property Brokers Wairoa, (Licensed: Reaa 2008) |
| 2 Feb 2023 | ENQUIRIES OVER | $825,000 | Vern Withey of Property Brokers Wairoa, (Licensed: Reaa 2008) |
| 9 Nov 2022 | ENQUIRIES OVER | $825,000 | Vern Withey of Property Brokers Wairoa |
| 18 Aug 2022 | BY NEGOTIATION | Price Not Disclosed | Danny Whatuira of Professionals Hastings |
| 7 Jan 2022 | ASKING PRICE | $880,000 | Danny Whatuira of Property Ventures Real Estate Limited |
| 28 May 2021 | ASKING PRICE | $880,000 | Danny Whatuira of Property Ventures Real Estate Limited, (Licensed: Reaa 2008) |
| 7 Jul 2015 | SOLD | $430,000 | Kimberley Bell of Property Brokers Wairoa |
| 23 Oct 2012 | ASKING PRICE | Price Not Disclosed | Kimberley Bell of Property Brokers Wairoa |
| 14 Jun 2000 | SOLD | $245,000 | |
| 2 Dec 1987 | SOLD | $55,000 |
Lot 4 Deposited Plan 8580
There are no similar properties in the area that are listed for sale or recently sold.