1 of 26Sep 25
Loading...

87 Brookvale Road Havelock North, 4130


87 Brookvale Road , Havelock North, 4130
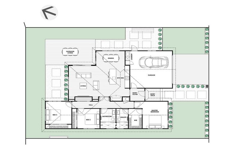
bed3
bathroom2
car-
land443 m2
floor-
Property Type
Residential
Year Built
-
Last Sold on 20 Aug 2025 for $399,000
Settlement Date
-
Sold By
Property Brokers Limited
Settlement Date
-
Sold By
Property Brokers Limited

Estimated Value Range  


An estimate of value is not currently available for this property. There could be insufficient property information or recent sales data. The property could be out of scope (e.g. non-residential, highly unique, rural) or the estimate cannot be determined with high enough confidence.

About 87 Brookvale Road, Havelock North, 4130

87 Brookvale Road, Havelock North, 4130 is a Residential property with 3 bedrooms, 2 bathrooms and 0 parking spaces. Due to insufficient data, the value of the property cannot be estimated.

The property last sold on 20 August 2025 for $399,000. It was sold by Property Brokers Limited. On 1 August 2022, 87 Brookvale Road, Havelock North, 4130 had a Rating Valuation with a Capital Value of $660,000 and Land Value of $660,000.

Property History

DateTypePriceAgent/Agency
20 Aug 2025SOLD$399,000
28 May 2025ASKING PRICE$1,200,000
3 Feb 2024ASKING PRICE$525,000Hayley Crosse of Property Brokers Hastings, (Licensed: Reaa 2008)
Present Day
20 Aug
2025
Sold for $399,000
8 months 9 days
28 May
2025
Asking Price — $1,200,000
3 Feb
2024
Asking Price — $525,000
Listed by Hayley Crosse of Property Brokers Hastings, (Licensed: Reaa 2008)
Unknown
Property Built

Commute Calculator

-
-
-
-

Rating Valuation

Capital Value
$660,000
Land Value
$660,000
Improvement Value
-
Legal Description(s)

Lot 20 Deposited Plan 563793

Valuation Date
01-08-2022
Valuation Reference
10510/19301

Additional Information

Roof Construction
-
Zone
Residential Zone A, 9A
Units of Use
1
Wall Construction
-
Maori Land
No
Territorial Authority
Hastings District
Land Use
Vacant Residential

Suburb Insights

Comparable Properties

There are no similar properties in the area that are listed for sale or recently sold.