
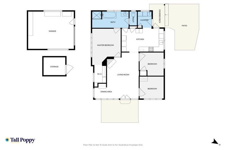
1 Grange Road North, Haumoana, 4102 is a Residential property built in 1925 with 3 bedrooms, 1 bathroom and 2 parking spaces. The property is estimated to be valued in the range of $750,000 to $800,000.
It is unknown when the property was last sold or how much it was sold for. On 1 August 2022, 1 Grange Road North, Haumoana, 4102 had a Rating Valuation with a Capital Value of $890,000, Land Value of $650,000 and Improvement Value of $240,000.
| Date | Type | Price | Agent/Agency |
|---|---|---|---|
| 29 Apr 2003 | SOLD | $237,000 | |
| 6 Dec 1999 | SOLD | $136,500 | |
| 27 May 1996 | SOLD | $129,000 | |
| 1 Jul 1994 | SOLD | $107,000 | |
| 1 Jul 1989 | SOLD | $53,000 | |
| 1 Oct 1986 | SOLD | $38,000 |
Lot 74-75 Deeds Plan 504
There are no similar properties in the area that are listed for sale or recently sold.