
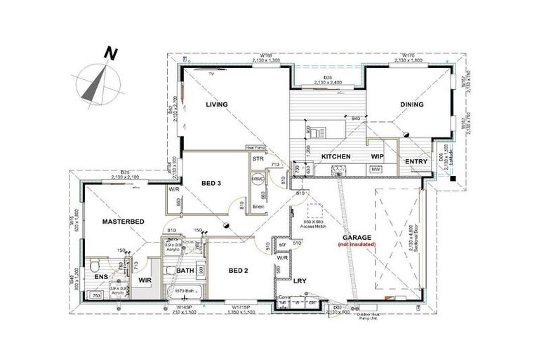
8 Curtis Street, Woodend, 7610 is a Residential property built in 2025 with 3 bedrooms, 2 bathrooms and 2 parking spaces. The property is estimated to be valued in the range of $750,000 to $800,000.
It is unknown when the property was last sold or how much it was sold for. On 1 June 2025, 8 Curtis Street, Woodend, 7610 had a Rating Valuation with a Capital Value of $730,000, Land Value of $320,000 and Improvement Value of $410,000.
| Date | Type | Price | Agent/Agency |
|---|---|---|---|
| 7 Jun 2025 | Rented | $640 | Leeann Jones of Harcourts Four Seasons Realty 2017 Ltd Rangiora, (Licensed: Reaa 2008) |
Lot 505 Deposited Plan 569585
There are no similar properties in the area that are listed for sale or recently sold.