
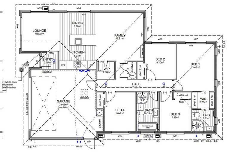
77 Henshaw Street, Woodend, 7610 is a Residential property built in 2024 with 4 bedrooms, 2 bathrooms and 2 parking spaces. The property is estimated to be valued in the range of $700,000 to $750,000.
The property last sold on 10 November 2023 for $725,500. It was sold by Oakridge Homes Limited, and took 52 days to sell. On 1 July 2022, 77 Henshaw Street, Woodend, 7610 had a Rating Valuation with a Capital Value of $710,000, Land Value of $370,000 and Improvement Value of $340,000.
| Date | Type | Price | Agent/Agency |
|---|---|---|---|
| 10 Nov 2023 | SOLD | $725,500 | |
| 20 Sep 2023 | ASKING PRICE | $749,000 | Oakridge Homes of Oakridge Homes Limited |
| 17 Jul 2023 | SOLD | $208,695 | |
| 20 Apr 2021 | SOLD | $190,434 |
Lot 604 Deposited Plan 587359
There are no similar properties in the area that are listed for sale or recently sold.