
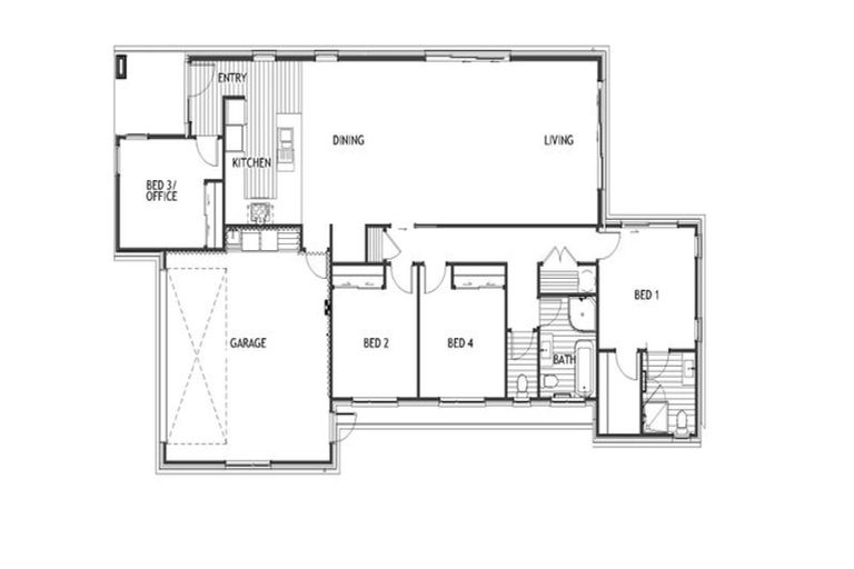
47 Henshaw Street, Woodend, 7610 is a Residential property built in 2025 with 4 bedrooms, 2 bathrooms and 2 parking spaces. The property is estimated to be valued in the range of $800,000 to $900,000.
The property last sold on 28 May 2025 for an unknown price. It was sold by Harcourts Four Seasons Realty 2017 Ltd - Kaiapoi, (Licensed: Reaa 2008). On 1 July 2022, 47 Henshaw Street, Woodend, 7610 had a Rating Valuation with a Capital Value of $810,000, Land Value of $365,000 and Improvement Value of $445,000.
| Date | Type | Price | Agent/Agency |
|---|---|---|---|
| 28 May 2025 | $0 | Pending Settlement Advice | |
| 28 Nov 2024 | ASKING PRICE | Price Not Disclosed | Jenny Lake of Harcourts Kaiapoi |
| 1 Jan 1930 | SOLD | $0 |
Lot 619 Deposited Plan 587359
There are no similar properties in the area that are listed for sale or recently sold.