
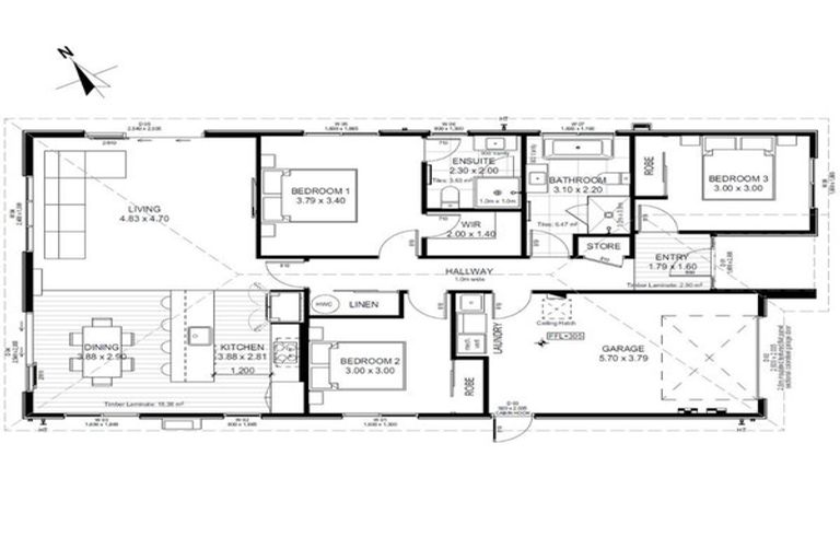
11 Henshaw Street, Woodend, 7610 is a Residential property built in 2024 with 3 bedrooms, 2 bathrooms and 1 parking space. The property is estimated to be valued in the range of $700,000 to $750,000.
The property last sold on 30 May 2024 for $680,000. It was sold by Harcourts Grenadier - Riccarton. On 1 July 2022, 11 Henshaw Street, Woodend, 7610 had a Rating Valuation with a Capital Value of $690,000, Land Value of $365,000 and Improvement Value of $325,000.
| Date | Type | Price | Agent/Agency |
|---|---|---|---|
| 30 May 2024 | SOLD | $680,000 | |
| 21 Apr 2024 | ASKING PRICE | $690,000 | Jenny Lake of Harcourts Four Seasons Realty 2017 Ltd - Kaiapoi, (Licensed: Reaa 2008) |
| 7 Jul 2023 | SOLD | $596,000 |
Lot 637 Deposited Plan 587359
There are no similar properties in the area that are listed for sale or recently sold.