
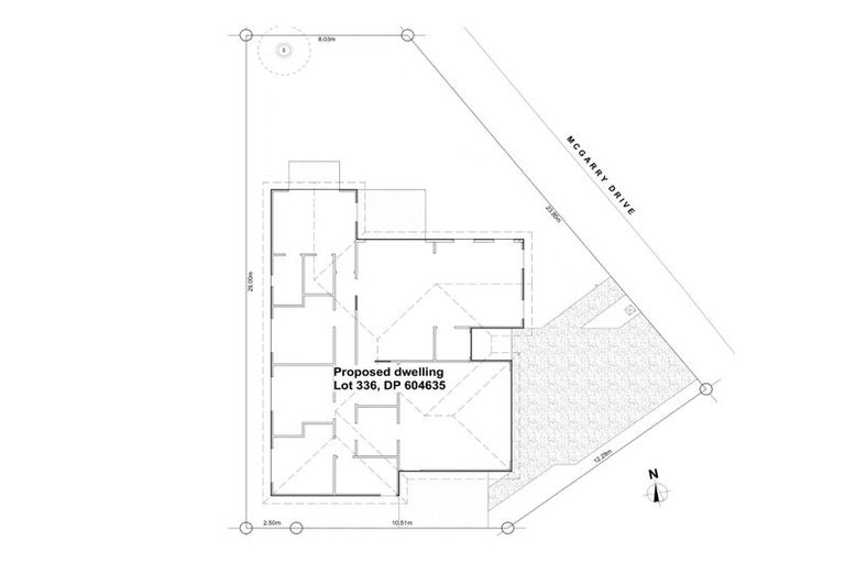
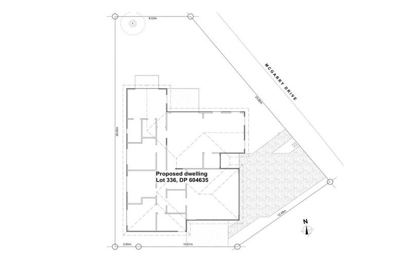
35 Mcgarry Drive, Kaiapoi, 7630 is a Residential property built in 2025 with 4 bedrooms, 2 bathrooms and 2 parking spaces. The property is estimated to be valued in the range of $800,000 to $900,000.
The property last sold on 1 January 1930 for an unknown price. On 1 June 2025, 35 Mcgarry Drive, Kaiapoi, 7630 had a Rating Valuation with a Capital Value of $780,000, Land Value of $315,000 and Improvement Value of $465,000.
| Date | Type | Price | Agent/Agency |
|---|---|---|---|
| 19 Dec 2024 | ENQUIRIES OVER | $799,000 | Philip Wright of Miles |
| 1 Jan 1930 | SOLD | $0 |
Lot 336 Deposited Plan 604635
There are no similar properties in the area that are listed for sale or recently sold.