1 of 4Sep 25
Loading...

22 Lintott Street Kaiapoi, 7630


22 Lintott Street , Kaiapoi, 7630
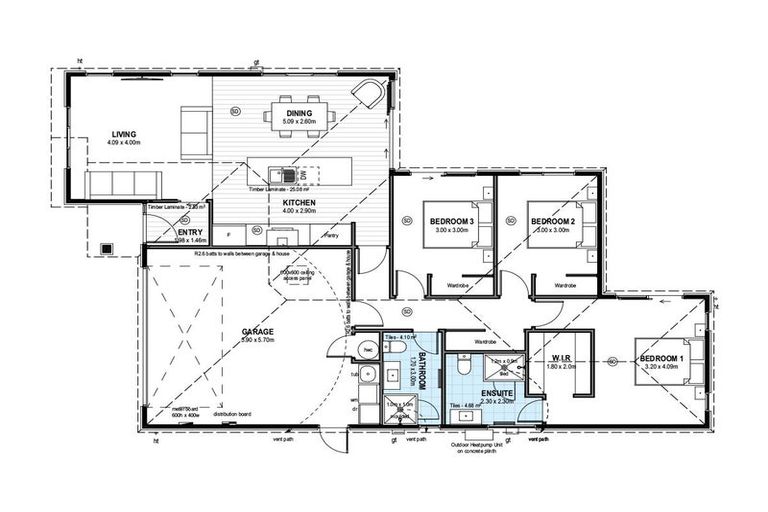
bed3
bathroom2
car-
land322 m2
floor-
Property Type
Residential
Year Built
-
Last Sold on 11 Feb 2026
Pending Settlement Advice
Settlement Date
-
Sold By
Mike Greer Homes Ltd
Settlement Date
-
Sold By
Mike Greer Homes Ltd

Estimated Value Range  


An estimate of value is not currently available for this property. There could be insufficient property information or recent sales data. The property could be out of scope (e.g. non-residential, highly unique, rural) or the estimate cannot be determined with high enough confidence.

About 22 Lintott Street, Kaiapoi, 7630

22 Lintott Street, Kaiapoi, 7630 is a Residential property with 3 bedrooms, 2 bathrooms and 0 parking spaces. Due to insufficient data, the value of the property cannot be estimated.

The property last sold on 11 February 2026 for an unknown price. It was sold by Mike Greer Homes Ltd, and took 7 days to sell. On 1 June 2025, 22 Lintott Street, Kaiapoi, 7630 had a Rating Valuation with a Capital Value of $295,000 and Land Value of $295,000.

Property History

DateTypePriceAgent/Agency
11 Feb 2026$0Pending Settlement Advice
6 Sep 2025ASKING PRICE$739,000Sarah Wyeth of Mike Greer Homes Ltd
Present Day
11 Feb
2026
SOLD: Sale price not available
1 month 12 days
Pending Settlement Advice
6 Sep
2025
Asking Price — $739,000
Listed by Sarah Wyeth of Mike Greer Homes Ltd
Unknown
Property Built

Commute Calculator

-
-
-
-

Rating Valuation

Capital Value
$295,000
Land Value
$295,000
Improvement Value
-
Legal Description(s)

Lot 449 Deposited Plan 611502

Valuation Date
01-06-2025
Valuation Reference
21753/50546

Additional Information

Roof Construction
-
Zone
Residential Zone C, 9C
Units of Use
1
Wall Construction
-
Maori Land
No
Territorial Authority
Waimakariri District
Land Use
Vacant Residential

Suburb Insights

Comparable Properties

There are no similar properties in the area that are listed for sale or recently sold.