
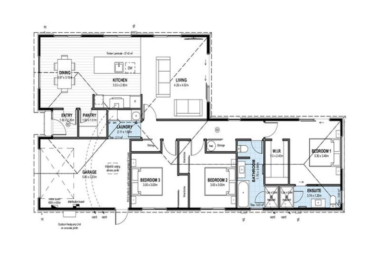
18 Pender Street, Kaiapoi, 7630 is a Residential property built in 2024 with 3 bedrooms, 2 bathrooms and 2 parking spaces. The property is estimated to be valued in the range of $700,000 to $750,000.
The property last sold on 15 April 2025 for $695,000. It was sold by Mike Greer Homes Ltd, and took 8 days to sell. On 1 June 2025, 18 Pender Street, Kaiapoi, 7630 had a Rating Valuation with a Capital Value of $680,000, Land Value of $285,000 and Improvement Value of $395,000.
| Date | Type | Price | Agent/Agency |
|---|---|---|---|
| 30 Apr 2025 | Rented | $620 | Harry Sinclair of Central Property Management |
| 15 Apr 2025 | SOLD | $695,000 | |
| 8 Apr 2025 | ASKING PRICE | $695,000 | Sue Coakley of Mike Greer Homes Ltd |
| 12 Jul 2024 | ASKING PRICE | $695,000 | Sue Coakley of Mike Greer Homes Ltd |
| 1 Jan 1930 | SOLD | $0 |
Lot 272 Deposited Plan 595347
There are no similar properties in the area that are listed for sale or recently sold.