
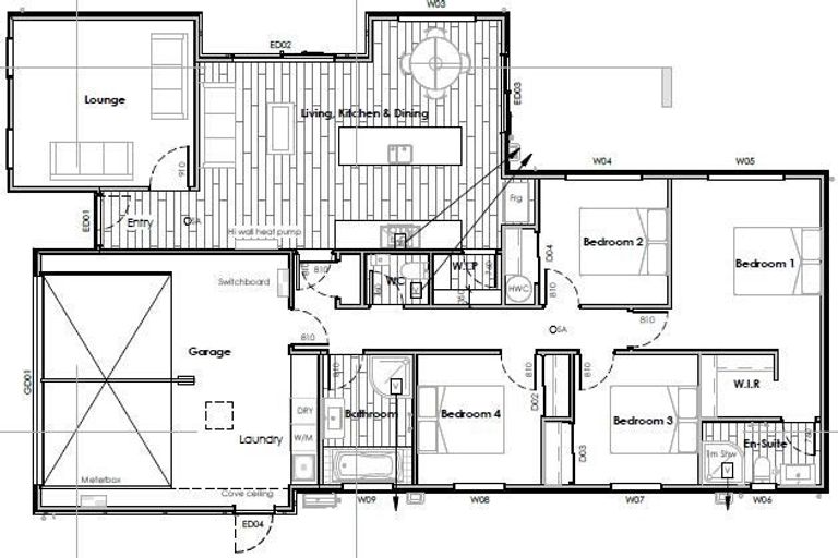
12 Dempsey Street, Kaiapoi, 7630 is a Residential property built in 2024 with 4 bedrooms, 2 bathrooms and 2 parking spaces. The property is estimated to be valued in the range of $750,000 to $800,000.
It is unknown when the property was last sold or how much it was sold for. On 1 June 2025, 12 Dempsey Street, Kaiapoi, 7630 had a Rating Valuation with a Capital Value of $730,000, Land Value of $305,000 and Improvement Value of $425,000.
| Date | Type | Price | Agent/Agency |
|---|---|---|---|
| 11 Jul 2024 | ASKING PRICE | $790,000 | John Hawes of Fraemohs Homes NZ Ltd |
Lot 254 Deposited Plan 586745
There are no similar properties in the area that are listed for sale or recently sold.