
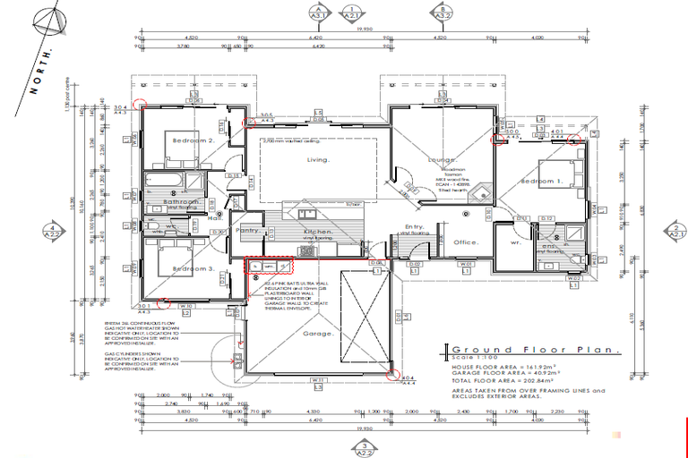
123 Oak Street, Orari, Geraldine, 7992 is a Residential property built in 2023 with 3 bedrooms, 2 bathrooms and 4 parking spaces. The property is estimated to be valued in the range of $800,000 to $900,000.
The property last sold on 18 July 2025 for an unknown price. It was sold by LJ Hooker Geraldine. On 1 September 2023, 123 Oak Street, Orari, Geraldine, 7992 had a Rating Valuation with a Capital Value of $895,000, Land Value of $160,000 and Improvement Value of $735,000.
| Date | Type | Price | Agent/Agency |
|---|---|---|---|
| 18 Jul 2025 | $905,000 | Pending Settlement Advice | |
| 26 May 2025 | SOLD | $905,000 | Anne Weschenfelder of LJ Hooker Geraldine |
| 7 May 2025 | ASKING PRICE | Price Not Disclosed | Anne Weschenfelder of LJ Hooker Geraldine |
| 7 May 2025 | ASKING PRICE | Price Not Disclosed | Anne Weschenfelder of LJ Hooker Geraldine |
Lot 3 Deposited Plan 555028
There are no similar properties in the area that are listed for sale or recently sold.