
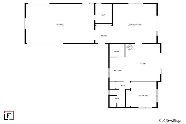
4/469 Maddisons Road, Rolleston, Christchurch, 7675 is a Lifestyle property built in 2008 with 5 bedrooms, 4 bathrooms and 2 parking spaces. The property is estimated to be valued in the range of $1,800,000 to $2,000,000.
The property last sold on 5 April 2025 for $1,820,000. It was sold by Tbg Realty, and took 149 days to sell. On 1 September 2024, 4/469 Maddisons Road, Rolleston, Christchurch, 7675 had a Rating Valuation with a Capital Value of $1,700,000, Land Value of $680,000 and Improvement Value of $1,020,000.
| Date | Type | Price | Agent/Agency |
|---|---|---|---|
| 5 Aug 2025 | Rented | $550 | Quinovic Rolleston of Quinovic Rolleston |
| 5 Apr 2025 | SOLD | $1,820,000 | Nadia Byrne of Tbg Realty |
| 8 Nov 2024 | ENQUIRIES OVER | $1,799,000 | Paul Byrne of Tbg Realty |
| 22 Jun 2010 | DEADLINE PRIVATE TREATY | $719,000 | Peter Ryder of Ray White Merivale |
Lot 2 Deposited Plan 368017
There are no similar properties in the area that are listed for sale or recently sold.