
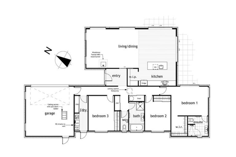
82 Lady Isaac Drive, Rolleston, 7615 is a Residential property built in 2023 with 3 bedrooms, 2 bathrooms and 2 parking spaces. The property is estimated to be valued in the range of $800,000 to $900,000.
It is unknown when the property was last sold or how much it was sold for. On 1 September 2024, 82 Lady Isaac Drive, Rolleston, 7615 had a Rating Valuation with a Capital Value of $880,000, Land Value of $350,000 and Improvement Value of $530,000.
| Date | Type | Price | Agent/Agency |
|---|---|---|---|
| 3 Feb 2025 | BY NEGOTIATION | Price Not Disclosed | Jolene Eagar of Raine & Horne Lincoln | West Melton | Rolleston, (Licensed: Reaa 2008) |
Lot 399 Deposited Plan 555938
There are no similar properties in the area that are listed for sale or recently sold.