
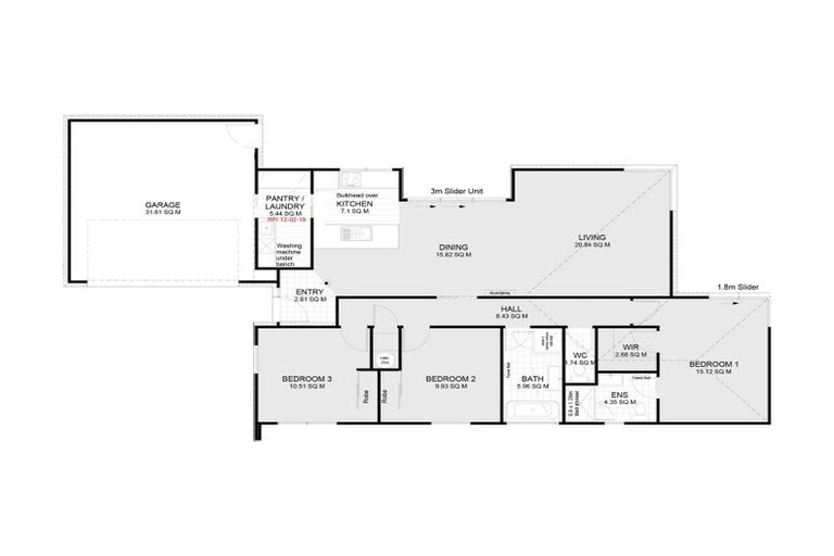
8 Kennington Drive, Rolleston, 7615 is a Residential property built in 2019 with 3 bedrooms, 2 bathrooms and 2 parking spaces. The property is estimated to be valued in the range of $750,000 to $800,000.
It is unknown when the property was last sold or how much it was sold for. On 1 September 2024, 8 Kennington Drive, Rolleston, 7615 had a Rating Valuation with a Capital Value of $740,000, Land Value of $315,000 and Improvement Value of $425,000.
| Date | Type | Price | Agent/Agency |
|---|---|---|---|
| 12 Apr 2025 | Rented | $620 | Paul Clement of Red Chili Property Management Ltd |
| 23 Feb 2022 | ENQUIRIES OVER | $799,000 | Amelia Nisbet of Bayleys Rolleston |
| 17 Jul 2019 | ENQUIRIES OVER | $529,000 | Felicity Darling-Croton of Ray White Selwyn (Town And Lifestyle Real Estate Ltd) |
Lot 9 Deposited Plan 529123
There are no similar properties in the area that are listed for sale or recently sold.