
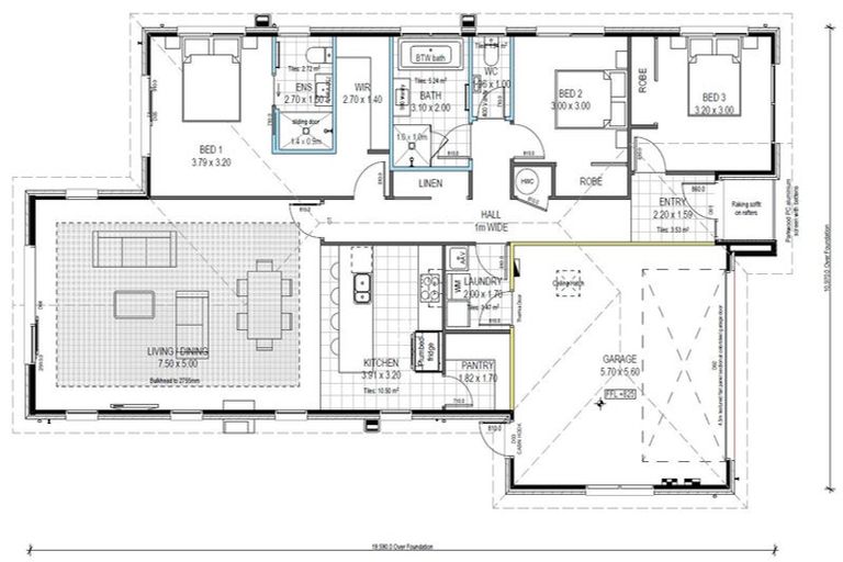
7 Kate Sheppard Drive, Rolleston, 7615 is a Residential property built in 2020 with 3 bedrooms, 2 bathrooms and 2 parking spaces. The property is estimated to be valued in the range of $750,000 to $800,000.
It is unknown when the property was last sold or how much it was sold for. On 1 September 2024, 7 Kate Sheppard Drive, Rolleston, 7615 had a Rating Valuation with a Capital Value of $740,000, Land Value of $325,000 and Improvement Value of $415,000.
| Date | Type | Price | Agent/Agency |
|---|---|---|---|
| 21 Mar 2024 | Rented | $610 | Myrent.Co.Nz of Myrent.Co.NZ Ltd |
Lot 20 Deposited Plan 531715
There are no similar properties in the area that are listed for sale or recently sold.