
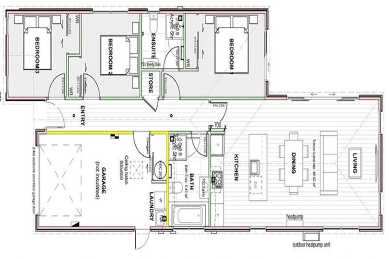
7 Cowley Lane, Rolleston, 7615 is a Residential property built in 2023 with 3 bedrooms, 2 bathrooms and 1 parking space. The property is estimated to be valued in the range of $650,000 to $700,000.
It is unknown when the property was last sold or how much it was sold for. On 1 September 2024, 7 Cowley Lane, Rolleston, 7615 had a Rating Valuation with a Capital Value of $650,000, Land Value of $285,000 and Improvement Value of $365,000.
| Date | Type | Price | Agent/Agency |
|---|---|---|---|
| 21 Jun 2024 | ENQUIRIES OVER | $669,000 | Anna James of Arizto Ltd, (Licensed: Reaa 2008) |
| 29 Apr 2023 | ASKING PRICE | $675,000 |
Lot 928 Deposited Plan 585017
There are no similar properties in the area that are listed for sale or recently sold.