
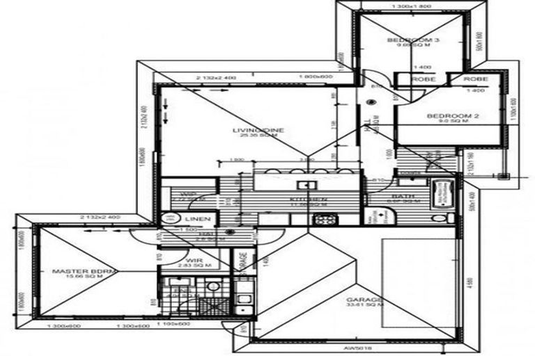
49 Hardingstone Drive, Rolleston, 7615 is a Residential property built in 2022 with 3 bedrooms, 2 bathrooms and 2 parking spaces. The property is estimated to be valued in the range of $750,000 to $800,000.
It is unknown when the property was last sold or how much it was sold for. On 1 September 2024, 49 Hardingstone Drive, Rolleston, 7615 had a Rating Valuation with a Capital Value of $740,000, Land Value of $365,000 and Improvement Value of $375,000.
| Date | Type | Price | Agent/Agency |
|---|---|---|---|
| 28 Aug 2025 | Rented | $610 | Anna-Marie Gerber of Xclusive Property Management |
| 5 Dec 2023 | Rented | $600 | David 022-581-3608 (Tenant) of Xclusive Property Management |
| 19 May 2023 | Rented | $600 | Grace | Anna-Marie of Xclusive Property Management |
| 31 Mar 2022 | Rented | $580 | Grace | Anna-Marie of Xclusive Property Management |
Lot 19 Deposited Plan 558871
There are no similar properties in the area that are listed for sale or recently sold.