
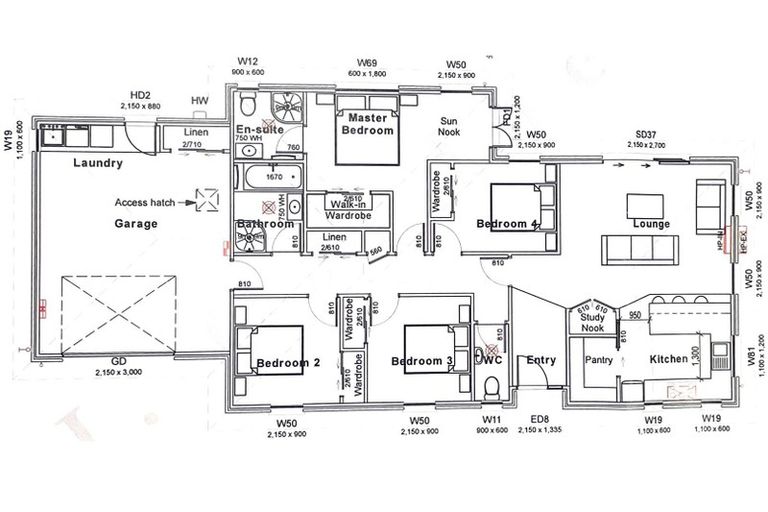
39 Hartford Crescent, Rolleston, 7615 is a Residential property built in 2018 with 4 bedrooms, 2 bathrooms and 2 parking spaces. The property is estimated to be valued in the range of $700,000 to $750,000.
It is unknown when the property was last sold or how much it was sold for. On 1 September 2024, 39 Hartford Crescent, Rolleston, 7615 had a Rating Valuation with a Capital Value of $730,000, Land Value of $315,000 and Improvement Value of $415,000.
| Date | Type | Price | Agent/Agency |
|---|---|---|---|
| 23 Mar 2022 | ASKING PRICE | $799,000 | Kathryn Bruce of Grenadier Real Estate |
Lot 787 Deposited Plan 492989
There are no similar properties in the area that are listed for sale or recently sold.