
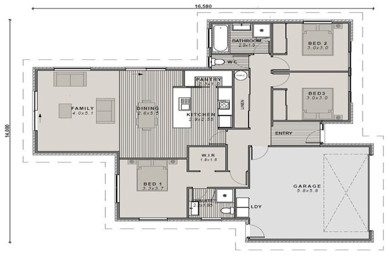
35 Lovelock Avenue, Rolleston, 7615 is a Residential property built in 2025 with 4 bedrooms, 2 bathrooms and 2 parking spaces. The property is estimated to be valued in the range of $800,000 to $900,000.
It is unknown when the property was last sold or how much it was sold for. On 1 September 2024, 35 Lovelock Avenue, Rolleston, 7615 had a Rating Valuation with a Capital Value of $780,000, Land Value of $330,000 and Improvement Value of $450,000.
| Date | Type | Price | Agent/Agency |
|---|---|---|---|
| 8 Sep 2023 | ASKING PRICE | $749,000 | Today Homes Limited of Today Homes Ltd |
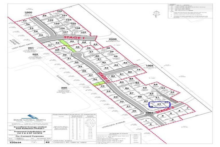
Lot 59 Deposited Plan 598987
There are no similar properties in the area that are listed for sale or recently sold.