
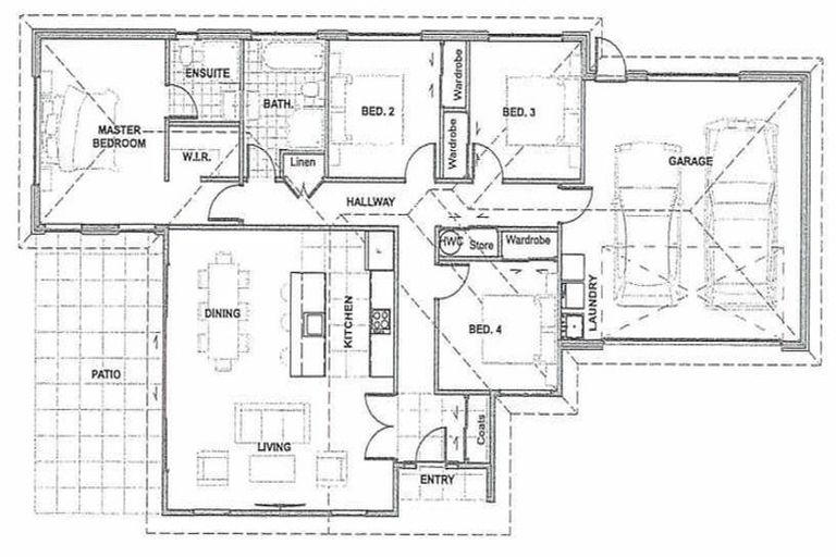
35 Kemble Drive, Rolleston, 7615 is a Residential property built in 2020 with 4 bedrooms, 2 bathrooms and 2 parking spaces. The property is estimated to be valued in the range of $750,000 to $800,000.
It is unknown when the property was last sold or how much it was sold for. On 1 September 2024, 35 Kemble Drive, Rolleston, 7615 had a Rating Valuation with a Capital Value of $760,000, Land Value of $325,000 and Improvement Value of $435,000.
| Date | Type | Price | Agent/Agency |
|---|---|---|---|
| 2 Oct 2020 | Rented | $530 | |
| 5 Feb 2020 | Rented | $530 | Caroline | Anna-Marie Gerber of Xclusive Property Management |
Lot 434 Deposited Plan 524388
There are no similar properties in the area that are listed for sale or recently sold.