
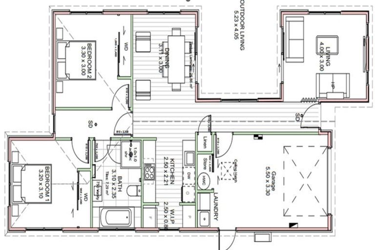
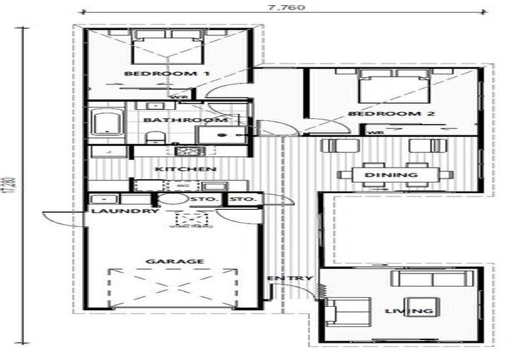
32 Mccormick Lane, Rolleston, 7615 is a Residential property built in 2023 with 2 bedrooms, 1 bathroom and 1 parking space. The property is estimated to be valued in the range of $600,000 to $650,000.
It is unknown when the property was last sold or how much it was sold for. On 1 September 2024, 32 Mccormick Lane, Rolleston, 7615 had a Rating Valuation with a Capital Value of $590,000, Land Value of $300,000 and Improvement Value of $290,000.
| Date | Type | Price | Agent/Agency |
|---|---|---|---|
| 10 Dec 2022 | ASKING PRICE | $581,500 | Kevin Kang of Green Homes New Zealand |
Lot 932 Deposited Plan 593876
There are no similar properties in the area that are listed for sale or recently sold.