
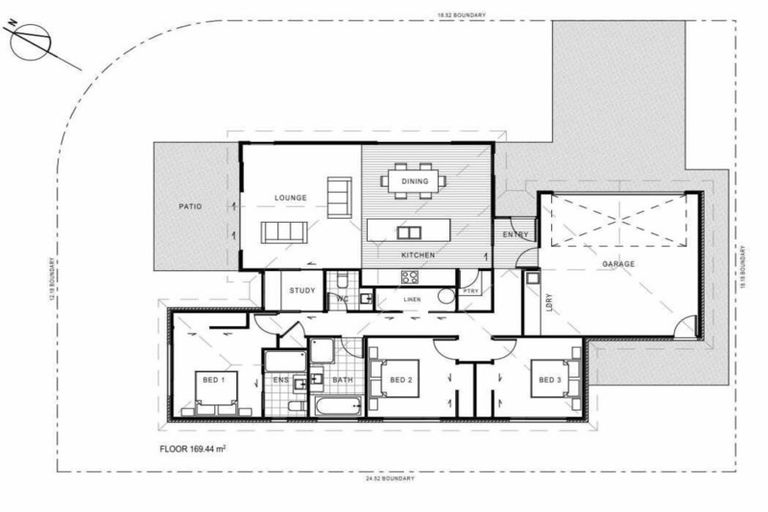
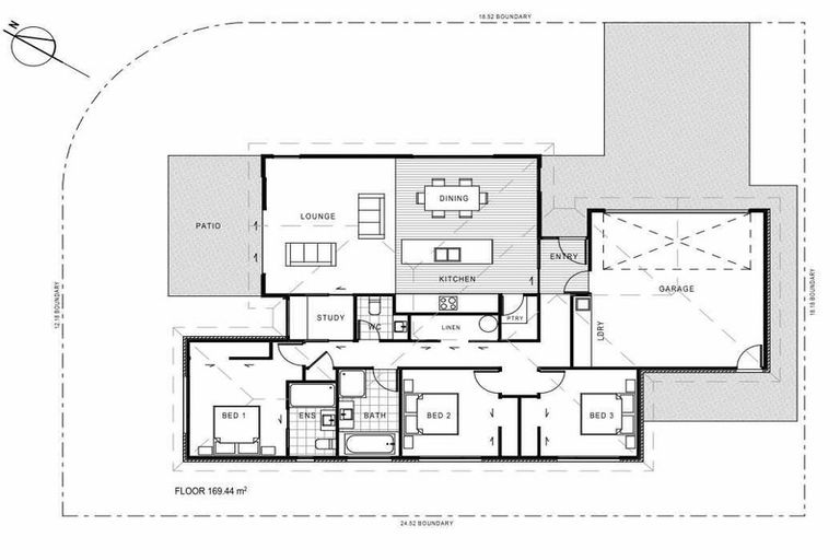
3 Kennington Drive, Rolleston, 7615 is a Residential property built in 2020 with 3 bedrooms, 2 bathrooms and 2 parking spaces. The property is estimated to be valued in the range of $700,000 to $750,000.
It is unknown when the property was last sold or how much it was sold for. On 1 September 2024, 3 Kennington Drive, Rolleston, 7615 had a Rating Valuation with a Capital Value of $730,000, Land Value of $315,000 and Improvement Value of $415,000.
| Date | Type | Price | Agent/Agency |
|---|---|---|---|
| 5 Nov 2025 | Rented | $620 | Fiona / Anna-Marie of Xclusive Property Management |
| 30 Jul 2022 | Rented | $580 | Grace | Anna-Marie of Xclusive Property Management |
| 9 Jan 2020 | Rented | $495 | Caroline | Anna-Marie Gerber of Xclusive Property Management |
Lot 22 Deposited Plan 529123
There are no similar properties in the area that are listed for sale or recently sold.