
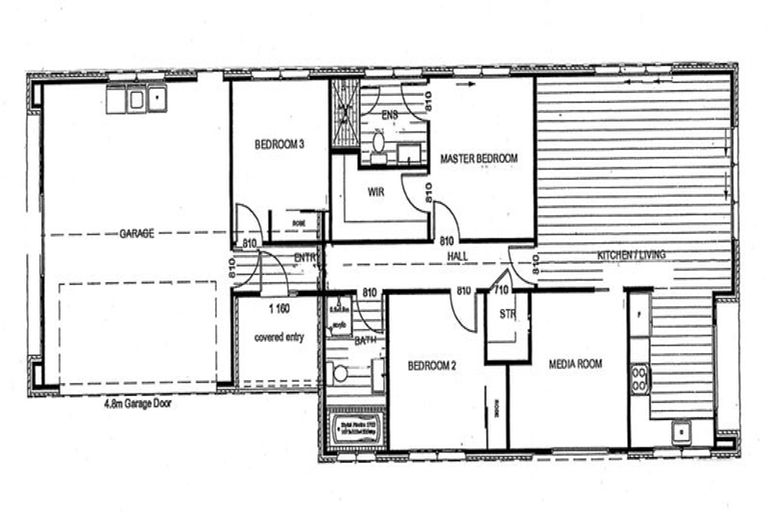
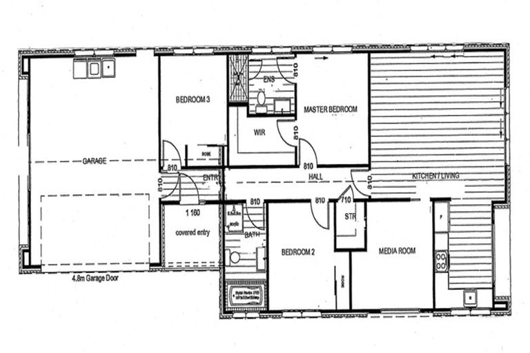
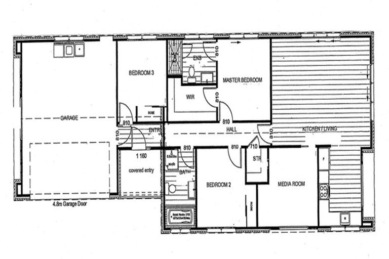
29 Lucca Crescent, Rolleston, 7615 is a Residential property built in 2021 with 3 bedrooms, 2 bathrooms and 2 parking spaces. The property is estimated to be valued in the range of $750,000 to $800,000.
It is unknown when the property was last sold or how much it was sold for. On 1 September 2024, 29 Lucca Crescent, Rolleston, 7615 had a Rating Valuation with a Capital Value of $770,000, Land Value of $350,000 and Improvement Value of $420,000.
| Date | Type | Price | Agent/Agency |
|---|---|---|---|
| 20 Nov 2023 | Rented | $600 | |
| 21 Apr 2022 | Rented | $575 | |
| 16 Mar 2021 | Rented | $550 |
Lot 142 Deposited Plan 530596
There are no similar properties in the area that are listed for sale or recently sold.